Более интересным по конструкции был спроектированный одновременно с В-5 вариант В-2СН, оборудованный системой наддува от приводного нагнетателя (последний заимствовали от авиамотора АМ-38). В результате, мощность удалось поднять до 850 л.с., однако надежность В-2СН на первых порах оставляла желать лучшего. Для доведения и В-5, и В-2СН до работоспособного состояния требовалось время.
Кстати, 21 февраля 1941 года, одновременно с отчетом по испытаниям танков Т-150 и Т-220, был составлен протокол по доводочным испытаниям двигателей В-2СН и В-5. Его подписали главный конструктор завода № 75 Т.П. Чупахин, начальник танкового производства Кировского завода А. И. Ланцберг, военинженер 1-го ранга Глухов и несколько представителей ГАБТУ КА.


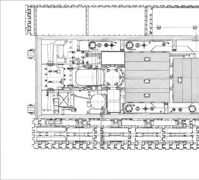
Разрез танка КВ-220 в плане, копия заводского чертежа. Хорошо виден аварийный люк в днище (за сиденьем механика-водителя), а также крышки ящиков для укладки артиллерийских выстрелов (АСКМ).
В этом документе говорилось следующее:
«1. Двигатели на испытания взяты преждевременно.
2. Для двигателей требуются доводочные, а не полигонные испытания.
3. Для обеспечения срочного проведения работы по доводке двигателей, опытные танки передать Комиссии по внутризаводским доводочным испытаниям двигателей…
Испытания закончить к 10 апреля 1941 года. К этому же сроку заводам Кировскому и № 75 обеспечить нормальные условия эксплуатации двигателей в танках, и передать танки с доработанными двигателями и системами охлаждения на полигонные испытания».
Все материалы испытаний танков Т-150 и Т-220 были доложены «наверх», руководству ГАБТУ КА и наркомата тяжелого машиностроения. Полученные результаты не удовлетворили военных, о чем начальник бронетанкового управления ГАБТУ КА военинженер 1-го ранга Коробков сообщил директору Кировского завода И.М. Зальцману 3 марта 1941 года. При этом Коробков потребовал устранить выявленные недостатки в конструкции системы охлаждения и самих двигателей, и только после этого отправить Т-150 и Т-220 на полигонные испытания.
Следует сказать, что еще в январе-феврале 1941 года СКБ-2 Кировского завода вело работы по проектированию улучшенного варианта танка Т-150. В новой машине конструкторы попытались устранить те недостатки, которые уже удалось выявить у Т-150.
В заводских документах улучшенный вариант Т-150 проходил как «объект 222». Сохранив основные черты предшественника, 222-й получил улучшенную систему охлаждения и новую башню. По схеме она чем-то напоминала башню первых серийных КВ-2 — с вертикальными бортами и наклонным передним листом. Командирская башенка (ее предполагалось отливать), имевшая шесть смотровых приборов, переместилась к корме: теперь командир машины должен был заниматься своими прямыми обязанностями — руководить действиями экипажа на поле боя.
К концу февраля 1941 года в руководстве наркомата обороны и центрального комитета ВКП (б) был поднят вопрос о принятии на производство танка КВ-3, который, по сути, представлял собой доработанный танк Т-150 с новой башней. Причем в ходе обсуждений «в верхах» остановились на том, чтобы башню изготавливать штампованной. Кроме того, предполагалось вооружить КВ-3 более мощной, чем Ф-32, 76,2-мм танковой пушкой Ф-34. В целом, к концу февраля 1941 года облик КВ-3 был окончательно сформирован. Вопросы вызывала силовая установка — но к этому времени замечания по дизелю В-5 были сформулированы, и завод № 75 в спешном порядке занимался их устранением и доработкой двигателя. А вот с конструкцией башни полной ясности не было. Поэтому 3 марта 1941 года специально созданная комиссия, в состав которой вошли представители ГАБТУ КА и военной приемки военинженеры 2-го ранга И.А. Бурцев и А.Ф. Шпитанов, военинженер 3-го ранга Каулин, а также директор Кировского завода И.М. Зальцман, начальник СКБ-2 завода Ж.Я. Котин, начальник 1-го отдела Кировского завода А.Я. Ланцберг и инженеры НИИ-48 В. Далле и А.П. Горячев, рассмотрела чертежи и деревянный макет башни танка для КВ-3 в натуральную величину.

Танк КВ-220, вид сзади слева. Январь 1941 года. В кормовом листе башни хорошо виден люк для монтажа орудия. Обратите внимание на гужоны в местах стыка кормового и бортового листов башни (ЦАМО).
Фактически представлялась башня «объекта 222» с наклонным передним листом и вертикальными бортовыми и кормовыми. Предусматривалось ее изготовление из брони толщиной 90 (лоб, борта и корма) и 40 (крыша) мм. Для удобства демонстрации деревянный макет установили на серийный корпус танка КВ-1.
Комиссия отметила, что такая конструкция «по сравнению с расположением (бронелистов) под углом, как это имеет место в серийных башнях танка КВ, где броня расположена под углом 15 град., снижает противоснарядную стойкость при стрельбе остроконечным снарядом».
Также среди недостатков отмечались неудачная конструкция места командира машины, слабая защита смотровых приборов командирской башенки и отсутствие в ней люка «для непосредственного наблюдения и выхода».
В своем заключительном акте комиссия разрешала изготовить первый образец башни по представленным чертежам, так как к намеченному сроку сдачи первого образца КВ-3 (1 апреля 1941 года) сконструировать новую башню с наклонными бортами завод просто не успеет. Однако в ее конструкции предполагалось устранить все отмеченные в недостатки. Вместе с тем, комиссия отмечала:
«Одновременно форсировать конструирование и изготовление башни КВ-3 с расположением броневых деталей под углом с тем, чтобы к моменту серийного запуска башни КВ-3 иметь отработанный вариант башни с наклонным расположением броневых деталей.
Первые экземпляры башен по обеим вариантам до запуска их в серийное производство, должны быть всесторонне испытаны снарядным обстрелом».
Однако Зальцман, Ланцберг и Котин записали в акте макетной комиссии «Особое мнение Кировского завода», которое сводилось к следующему:
«Данных по испытанию (обстрелом) 90 мм плит под углами встречи в 15 град, в сравнении с вертикалью Кировский завод не имеет, и по-видимому практически наклон преимуществ иметь не будет. Вертикальное расположение листов позволяет:
а) создать хорошие условия работы команде;
б) создать более прочные соединения плит, и особенно крыши;
в) обеспечивается большая легкость в изготовлении;
г) при тех же объемах башни вес ее при вертикальных листах меньше, чем при наклонных…
Кроме того следует отметить, что при данной конструкции есть возможности усиления мест, показавшихся комиссии слабыми, без существенных переделок, что будет учтено в процессе изготовления башни».

Танк КВ-220, вид слева. Хорошо видно расположение опорных катков ходовой части, командирская башенка с пулеметом ДТ и укладка брезента на надгусеничной полке. (ЦАМО).
15 марта 1941 года СНК СССР и ЦК ВКП (б) своим постановлением № 548–232 сс обязывали Кировский завод с июня перейти на серийное производство танка КВ-3, который фактически представлял собой Т-150 с новой башней. В постановлении для новой машины устанавливалась следующая характеристика:
«Боевой вес — 51–52 т, длина — 6760 мм, ширина — 3330 мм, высота — 3000 мм, клиренс — 400 мм, броня 90 мм, вооружение — одна 76-мм пушка Ф-34, три пулемета ДТ, один пистолет-пулемет ППШ, боекомплект — 114 снарядов, 2900 патронов (46 дисков), максимальная скорость по шоссе -35 км/ч, боевая скорость по местности — 15–20 км/ч, максимальный подъем 40 градусов, радиус действия — 250 км (10 часов), двигатель В-5 мощностью 700 л. с, башня с командирской башенкой, радиостанция КРСТБ (с возможностью установки 71-ТК-З), гарантийный километраж 2000 км».