31 мая танк вновь поступил на испытания, и к 20 июня новый «движок» проработал 27 часов 21 минуту. К этому же времени были обнаружены следующие дефекты:
— сгорело 3 комплекта выхлопных коллекторов;
— сгорели 4 ленты феродо бортовых фрикционов из-за неправильной регулировки;
— выкрошился обод у одного катка, и погнулись обода у девяти опорных катков, а также провертывалась резина у пяти катков;
— вышел из строя правый бортовой редуктор из-за разрушения подшипников и сильного износа ведущей шестерни.
С 7 июня 1941 года Кировский завод приступил к монтажу второго образца Т-220 (со 100 мм броней). К 20 июня на нем установили бортовые редукторы и ограничители угла закрутки торсионов, а также изготовили (но не смонтировали) коробку перемены передач, главный и бортовые фрикционы, элементы подвески. 20 июня 1941 года военпред Кировского завода военинженер 2-го ранга А. Шпитанов сообщил в ГАБТУ КА, что «машина готова будет не раньше 10–15 июля».

Корпус танка КВ-3 («объект 223»), продольный разрез. На чертеже стоят подписи конструктора Яковлева, руководителя группы К. Кузьмина (15 апреля 1941 года), старшего инженера машины Н. Халкиопова, заместителя главного конструктора Н. Духова и главного конструктора Ж. Котина (16 апреля 1941 года) (АСКМ).
Что касается танка Т-150, то он тоже использовался для опытных работ, прежде всего как база для испытания новых двигателей. При этом машину догрузили до массы в 56 т. По состоянию на 19 июня 1941 года, пробег Т-150 составил 2237 км, на нем сменили пять двигателей (два — В-2К по 600 л.с., два В-2Сф по 700 л.с. и один 700-сильный В-5). Кроме того, за это же время на танке обнаружился ряд дефектов — течь масла и повышенный износ шестерен в коробке перемены передач, вышел из строя бортовой фрикцион (скручена ступица барабана), разрушались резиновые амортизаторы нижних катков, а также отмечалось сильное загрязнение и разрыв бумажных топливофильтров.

Ленивец танка КВ-3 («объект 223»), копия заводского чертежа. Он подписан главным конструктором Ж. Котиным 20 апреля 1941 года (АСКМ).

Корпус танка КВ-3 («объект 223»), поперечный разрез, вид на трансмиссионную перегородку. На чертеже стоят подписи старшего инженера машины Н. Халкиопова и главного конструктора Ж. Котина, обе 16 апреля 1941 года (АСКМ).
Что касается непосредственно КВ-3, то к 20 июля 1941 года ситуация с его изготовлением, по докладу военпреда Кировского завода, была следующей:
«На 20/6 ГИЗом не поданы на завод корпус и башня. Имеется пушка с завода № 92. План подготовки производства заказа не выполняется в сроки по всем пунктам. По этому вопросу трубим тревогу. Нам неизвестны больные места машины, и при серийном производстве может выявиться ряд существенных дефектов, которые потом труднее будет устранять».

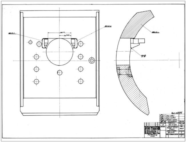
Нижняя подвеска танка КВ-3 («объект 223»), копия заводского чертежа. Конструкция опорных катков была аналогична серийному КВ, но внутренние резиновые имели более толстый массив. Чертеж подписан главным конструктором Ж. Котиным 22 апреля 1941 года (АСКМ).

Маска орудия танка КВ-3 («объект 223»), копия заводского чертежа. Подпись главного конструктора Ж. Котина датирована 29 апреля 1941 года (АСКМ).

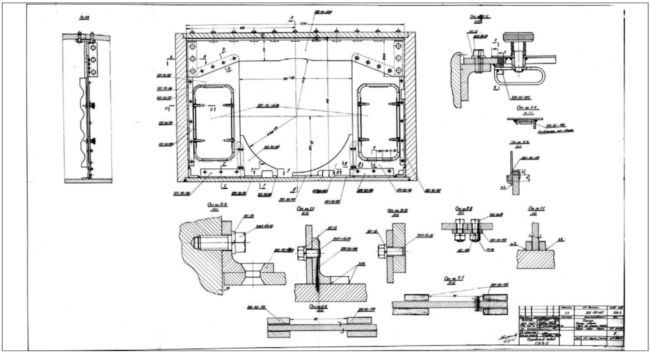
Вид в плане корпуса танка КВ-3 («объект 223»), копия заводского чертежа. Обратите внимание, что в связи увеличением диаметра погона практически до среза бортов пришлось усилить борта дополнительными броневыми накладками. Чертеж подписан главным конструктором Ж. Котиным 16 апреля 1941 года (АСКМ).
Следует сказать, что к этому времени проект нового варианта КВ-3 был полностью готов. Корпус машины должен был собираться из бронелистов толщиной 120, 100, 90, 40 и 30 мм. Конструктивно он походил на корпус «объекта 220». Башня имела толщину 130 мм (лоб, борт, корма) и 50 мм (крыша). Как уже говорилось выше, ее планировалось изготавливать штампованной. На ее крыше, над местом командира машины, устанавливалась командирская башенка с круговым обзором. В связи с установкой артсистемы с увеличенными (по сравнению с 85-мм) габаритами, башенный погон расширили до предела (диаметр в свету 1770 мм) — он практически упирался в борта корпуса. Для усиления защиты погона пришлось приваривать специальные броневые накладки. Вооружение КВ-3 состояло из 107-мм танковой пушки ЗиС-6 и двух пулеметов ДТ — спаренного с орудием и курсового, в лобовом листе корпуса. На части машин предполагалось курсовой пулемет заменить на пороховой огнемет. Углы обстрела спаренной установки в башне по вертикали составляли от -5 до +20 градусов. Возимый боекомплект машины — 55 107-мм выстрелов и 44 диска (2772 патрона) к ДТ. Огнемет (в случае его установки) имел огнесмеси на 15 выстрелов.
Первоначально КВ-3 планировалось оснастить двигателем В-5 мощностью 700 л.с. Однако в перспективе рассматривался вариант использования форсированного до 850 л.с. дизеля В-2СН. Запас хода составлял 300 км. Коробка перемены передач, спроектированная Н.Ф. Шашмуриным специально для КВ-3, обеспечивала пять передач вперед и одну назад. Конструкция ходовой части в целом была аналогична серийным КВ, но включала семь опорных и четыре поддерживающих катка (на борт). Правда, из-за возросшей массы КВ-3, часть деталей и узлов пришлось усилить. Вообще, при проектировании КВ-3 конструкторы старались по возможности использовать агрегаты с серийных КВ, чтобы облегчить серийное производство новой боевой машины.
К началу Великой Отечественной войны — на 21 июня 1941 года — состояние работ по изготовлению бронедеталей для КВ-3 на Ижорском заводе было следующим:
«а) Корпус КВ-3 находится на последней операции — монтаже, будет сдан числа 23–25 июня с/г.
б) Штампованные башни КВ-3 опытные, сейчас уже отштампованы (20.06.41 г.), и находятся на термообработке. Сдать их смогут только впервой декаде июня месяца с/г».
Но после начала войны ситуация с изготовлением КВ-3 кардинально изменилась. Так, 25 июня 1941 года появилось постановление СНК СССР и ЦК ВКП (б), которым водился в действие мобилизационный план по увеличению выпуска танков во втором полугодии 1941 года. Что касается КВ-3, то в документе о нем говорилось следующее: «С 1 июля подготовку производства КВ-3 на Кировском заводе снять, и перенести ее в Челябинск, на ЧТЗ, куда послать бригаду конструкторов, технологов, документацию, материалы и образец танка».
На следующий день постановление было продублировано приказом но наркомату тяжелого машиностроения, а 30 июня директор Кировского завода И. Зальцман подписал приказ № 47, согласно которому начальнику 1-го отдела предписывалось «организовать передачу ЧТЗ всю разработанную техническую документацию по объекту КВ-3 и отгрузку опытного образца, заготовок и инструментария».
Этим документом устанавливались сроки отправки чертежей, технических условий, расчетов и технологической документации — 3 июля, заготовок и готовых деталей для КВ-3, а также штампов, моделей и спец-инструмента для изготовления агрегатов этой машины — 9 июля. Для обеспечения работ по выпуску КВ-3 в Челябинске туда откомандировывалась группа конструкторов СКБ-2: Духов (заместитель главного конструктора), Павлов (старший инженер по КВ-3), Бурханов, Меренков, Петух, Скворцов, Соболев, Шнейдман и Шашмурин, а также несколько технологов и мастеров.
Тем же приказом Зальцмана предписывалось собрать «корпус опытной машины КВ-3 собрать с двигателем В-2СН (снять с машины 220) на серийных катках, и отгрузить на ЧТЗ 7 июля. Артсистему и оптику отгрузить на ЧТЗ не ожидая башни».